Neubau Mehrfamilienhaus in Ratingen Ansicht mit überdachten Eingang, Dachterrasse, französischen Fenstern, Sichtbetonelementen und Klinkerfassade aus Wasserstrichziegeln.

Neubau Mehrfamilienhaus Ratingen

Das moderne Mehrfamilienhaus überzeugt durch seine zeitgemäße und zurückhaltende Architektur. Die einheitliche Gestaltung von Haus, schützender Straßenmauer und Garagen mit einer nahezu bündig verfugten Klinkerschale aus Wasserstrichziegeln und Sichtbetonakzenten schafft ein prägnantes Ensemble, das dem Ort einen unverwechselbaren Charakter verleiht und zugleich für Langlebigkeit und Wertbeständigkeit steht.

Der zweigeschossige, unterkellerte Baukörper mit Staffelgeschoss nutzt die quadratische Grundfläche von 16 x 16 Metern optimal aus und weist im Verhältnis zum umschlossenen Volumen eine geringe Hüllfläche auf.

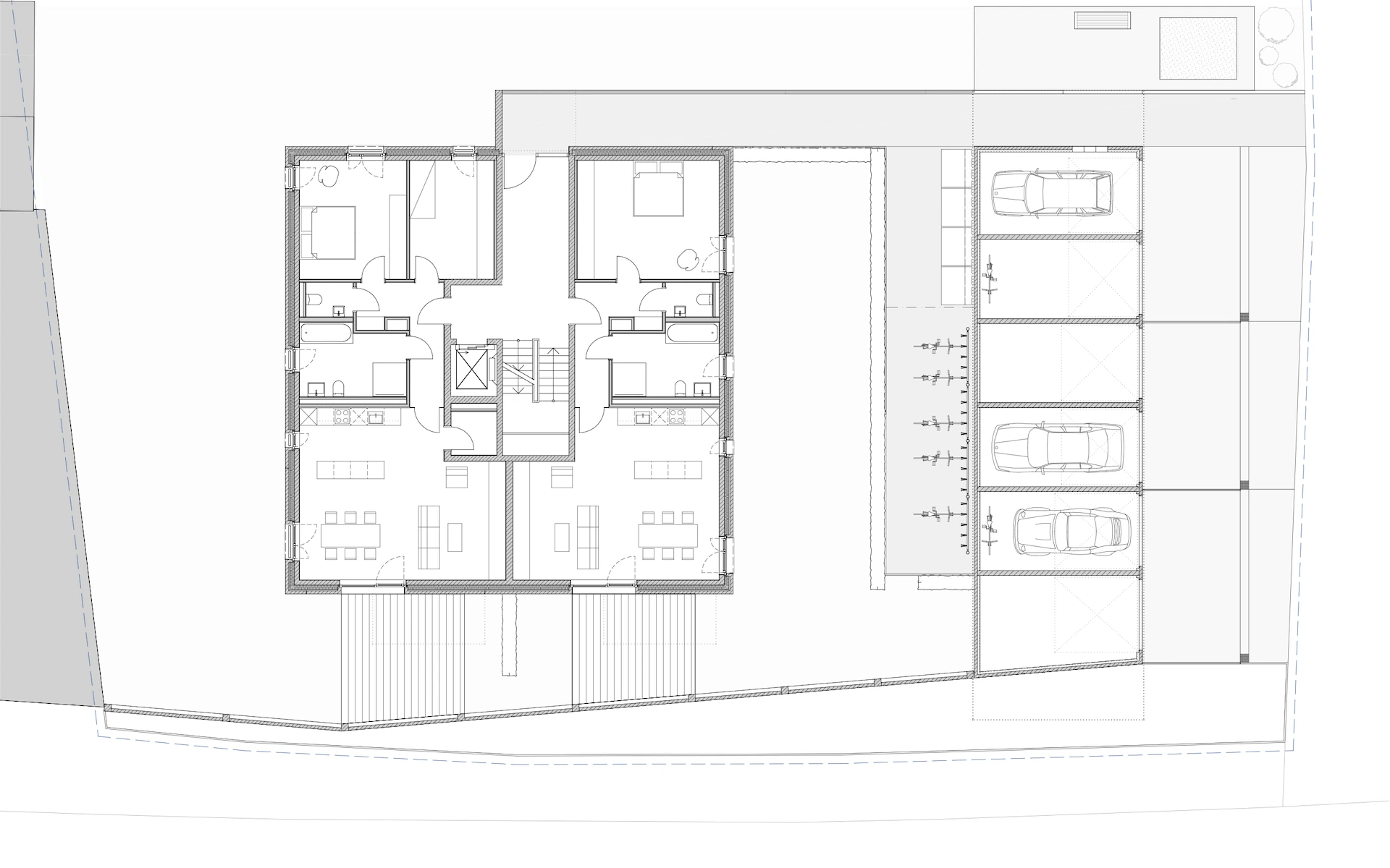
Das barrierefreie Treppenhaus mit Aufzug, das seitlich und von oben mit Tageslicht versorgt wird, ermöglicht eine komfortable und flächensparende Erschließung aller Wohnungen.

Die sechs Wohnungen im energieeffizienten KfW55-Standard bieten dank eines hochwertigen Materialkonzepts ein entsprechendes Wohngefühl und stehen in unterschiedlichen Größen zur Verfügung, um verschiedenen Lebensentwürfen gerecht zu werden. Großzügige Fensterflächen sorgen für eine helle und freundliche Atmosphäre, wobei die zwei- oder dreiseitig belichteten Wohnungen teilweise beeindruckende Ausblicke in die umliegende Landschaft bieten.

Jede Wohnung verfügt über einen privaten Außenbereich in Form einer Terrasse, eines Balkons oder einer Dachterrasse.

Das Gebäude verbindet anspruchsvolle Investoren-Architektur mit hoher Lebensqualität, Energieeffizienz und einem durchdachten Nutzungskonzept.

Auftraggeber

privat

Leistungsphasen

1 bis 7

Jahr

2024

Entwurfsverfassendes Büro

Brüning Rein GmbH & Co. KG

Neubau Mehrfamilienhaus in Ratingen Ansicht mit Terrassen, Balkonen, Dachterrassen, französischen Fenstern und Klinkerfassade aus Wasserstrichziegeln. Neubau Mehrfamilienhaus in Ratingen Grundriss des Erdgeschosses mit barrierefreier Erschließung, Garagen und Außenanlagen. Neubau Mehrfamilienhaus in Ratingen Ansicht von der Landstraße im Bauzustand mit französischen Fenstern, Klinkerfassade aus Wasserstrichziegeln und Sichtbetonbalkonplatten. Neubau Mehrfamilienhaus in Ratingen Detail einer Gebäudeecke im Bauzustand mit französischen Fenstern und Klinkerfassade aus Wasserstrichziegeln. Neubau Mehrfamilienhaus in Ratingen Detail einer Sichtbetonbalkonplatte im Bauzustand mit französischen Fenstern und Klinkerfassade aus Wasserstrichziegeln mit besandeten Dehnfugen.
Rein Wiechers Architekten